
Nantwich
Nantwich Sales & Lettings, Wright Marshall,
 56 High Street, Nantwich, Cheshire, CW5 5BB
THREE BEDROOM PROPERTY, IN NEED OF UPDATING, QUIET CUL DE SAC LOCATION, OPEN VIEWS TO THE REAR, SHORT WALK FROM BUNBURY VILLAGE, NO ONWARD CHAIN
Set on a generous corner plot within a quiet cul-de-sac, just a short walk from the picturesque village of Bunbury, this three-bedroom end mews home offers excellent potential and has been in the same family for many years.
By the vendor’s own admission, the property is in need of general refurbishment throughout and should be viewed as a project opportunity.
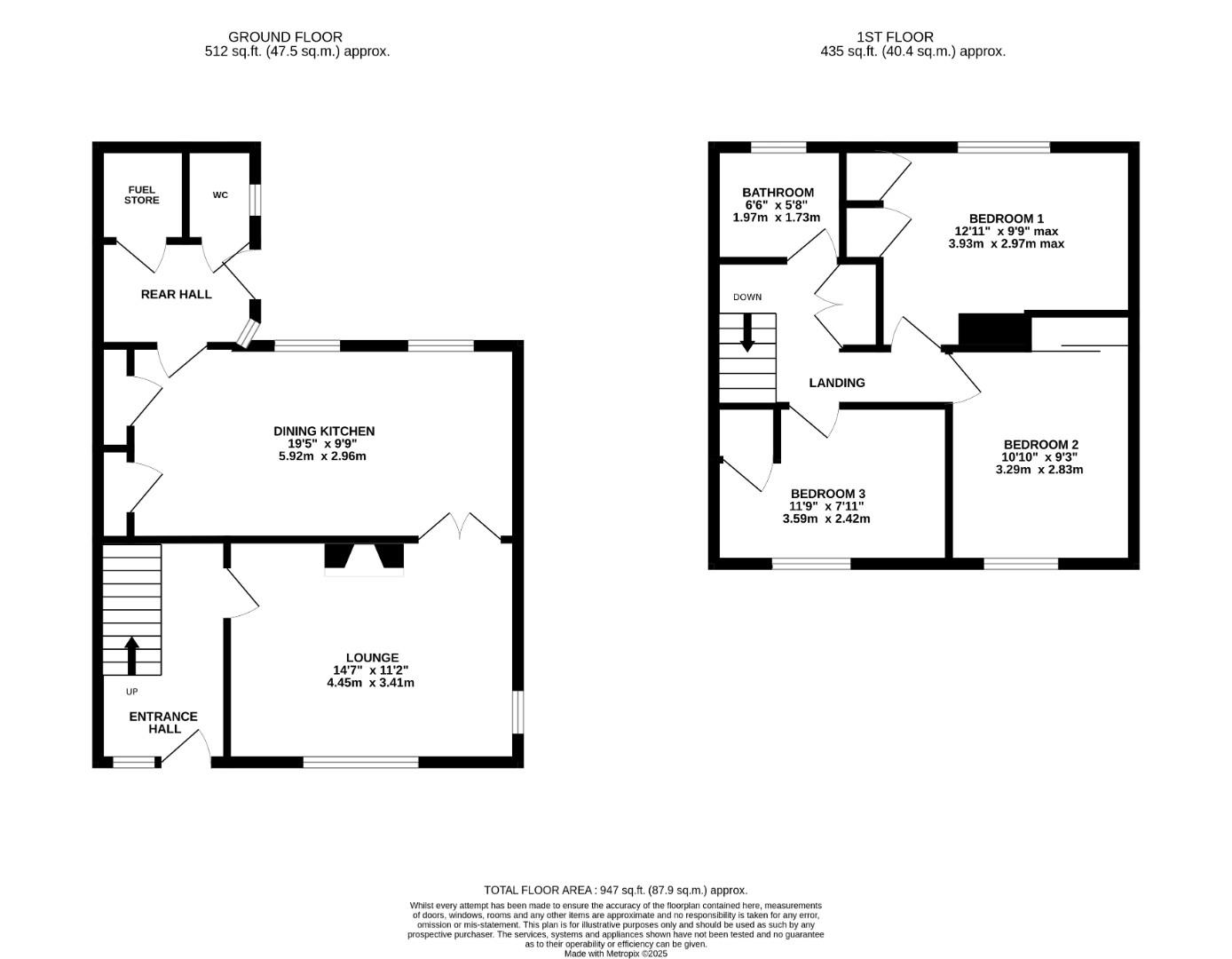
 Arranged over two floors, the accommodation briefly comprises a covered porch opening into an entrance hallway with stairs to the first floor, a spacious dual-aspect lounge with feature fireplace, and a fitted kitchen with an Aga-style stove. To the rear, the property benefits from additional space via outhouses that have been connected to the main house by a previous owner, offering scope for further development or conversion (subject to planning).
The first floor features three well-proportioned bedrooms, all served by a three-piece family bathroom.
Externally, a paved pathway leads to the front door with a lawned garden to the front, while to the rear there is a split-level garden with lawns to both the side and stepped-down rear sections, enjoying open views across the surrounding countryside.
This charming home is offered to the market with no onward chain, presenting an ideal opportunity for those seeking a project in one of Cheshire’s most sought-after village locations. Read more
Why not speak to us about it? Our property experts can give you a hand with booking a viewing, making an offer or just talking about the details of the local area.
Find out the value of your property and learn how to unlock more with a free valuation from your local experts. Then get ready to sell.
Book a valuation
 Knutsford Sales & Lettings, Wright Marshall,
 1 Princess Street, Knutsford, Cheshire, WA16 6BY














Lorem ipsum dolor sit amet, consectetuer adipiscing elit. Donec odio. Quisque volutpat mattis eros.
Lorem ipsum dolor sit amet, consectetuer adipiscing elit. Donec odio. Quisque volutpat mattis eros.
Lorem ipsum dolor sit amet, consectetuer adipiscing elit. Donec odio. Quisque volutpat mattis eros.