
Nantwich
Nantwich Sales & Lettings, Wright Marshall,
56 High Street, Nantwich, Cheshire, CW5 5BB
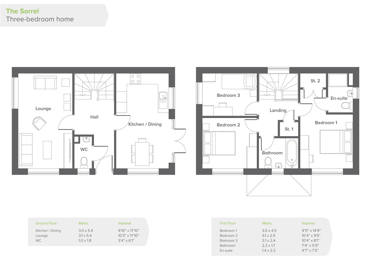
The Sorrel is a detached three bedroom property with a large rear lawned garden located within walking distance of Northwich town centre
Developed by Your Housing Group, Orchard View is a new build development consisting of a range of semi-detached and detached properties, located on Middlewich Road in Northwich.
Externally plot 60 has a double driveway to the side aspect with a side gate providing access to the rear lawned garden, ideal for entertaining family and friends.
Ground floor accommodation comprises hallway with stairs to the first floor and provides access to the downstairs WC, kitchen/dining room and lounge. The kitchen has a range of low level and eye level symphony cabinets and worktops, one of which houses the A-rated gas combi boiler, electric oven and induction hob, cooker hood and a range of integrated appliances including a fridge freezer and dishwasher.
The first floor comprises spacious landing with a double glazed window to the front aspect and provides access to the three bedrooms and the modern three piece family bathroom.
Northwich and surrounds are renowned for it’s superb educational facilities. Catering for all age groups, including the highly reputable and very popular Kingsmead Primary School, Grange School (junior and secondary school level), St Nicolas’s Roman Catholic high school, Mid-Cheshire College of Further Education and Sir John Deane’s Sixth Form and further education college which is within a short drive of the property.
Road access to the M6 and the M56 is afforded by the A556 and the A49, making commuting to Chester, Warrington, Liverpool, Manchester and Media City easily accessible, whilst Liverpool and Manchester International Airports can be accessed within 45 minutes drive. Local railway stations include Northwich (Manchester to Chester line) and Hartford (Liverpool to London).
Northwich town centre has a range of independent and established retails chains. There are several supermarkets including Sainsburys, Tesco and Waitrose. The town is currently being re developed and a brand new cinema and restaurant complex known as Barons Quay and a leisure complex known as Brio leisure have recently been built providing an Olympic sized indoor swimming pool, state of the art gymnasium and theatre. Read more
Why not speak to us about it? Our property experts can give you a hand with booking a viewing, making an offer or just talking about the details of the local area.
Find out the value of your property and learn how to unlock more with a free valuation from your local experts. Then get ready to sell.
Book a valuation
Suite S31 Northwich Business Centre
Meadow Street Northwich
Cheshire CW9 5BF


















Lorem ipsum dolor sit amet, consectetuer adipiscing elit. Donec odio. Quisque volutpat mattis eros.
Lorem ipsum dolor sit amet, consectetuer adipiscing elit. Donec odio. Quisque volutpat mattis eros.
Lorem ipsum dolor sit amet, consectetuer adipiscing elit. Donec odio. Quisque volutpat mattis eros.