
Nantwich
Nantwich Sales & Lettings, Wright Marshall,
56 High Street, Nantwich, Cheshire, CW5 5BB
THREE BEDROOMS • OPEN-PLAN KITCHEN • TWO RECEPTION ROOMS • GARDEN OFFICE • CUL-DE-SAC LOCATION • NO ONWARD CHAIN
This beautifully presented family home, set in a quiet cul-de-sac in Knutsford, offers generous living space, modern finishes, and excellent versatility. Carefully maintained and updated over the years, it provides a light-filled and welcoming environment, ideal for contemporary family life.
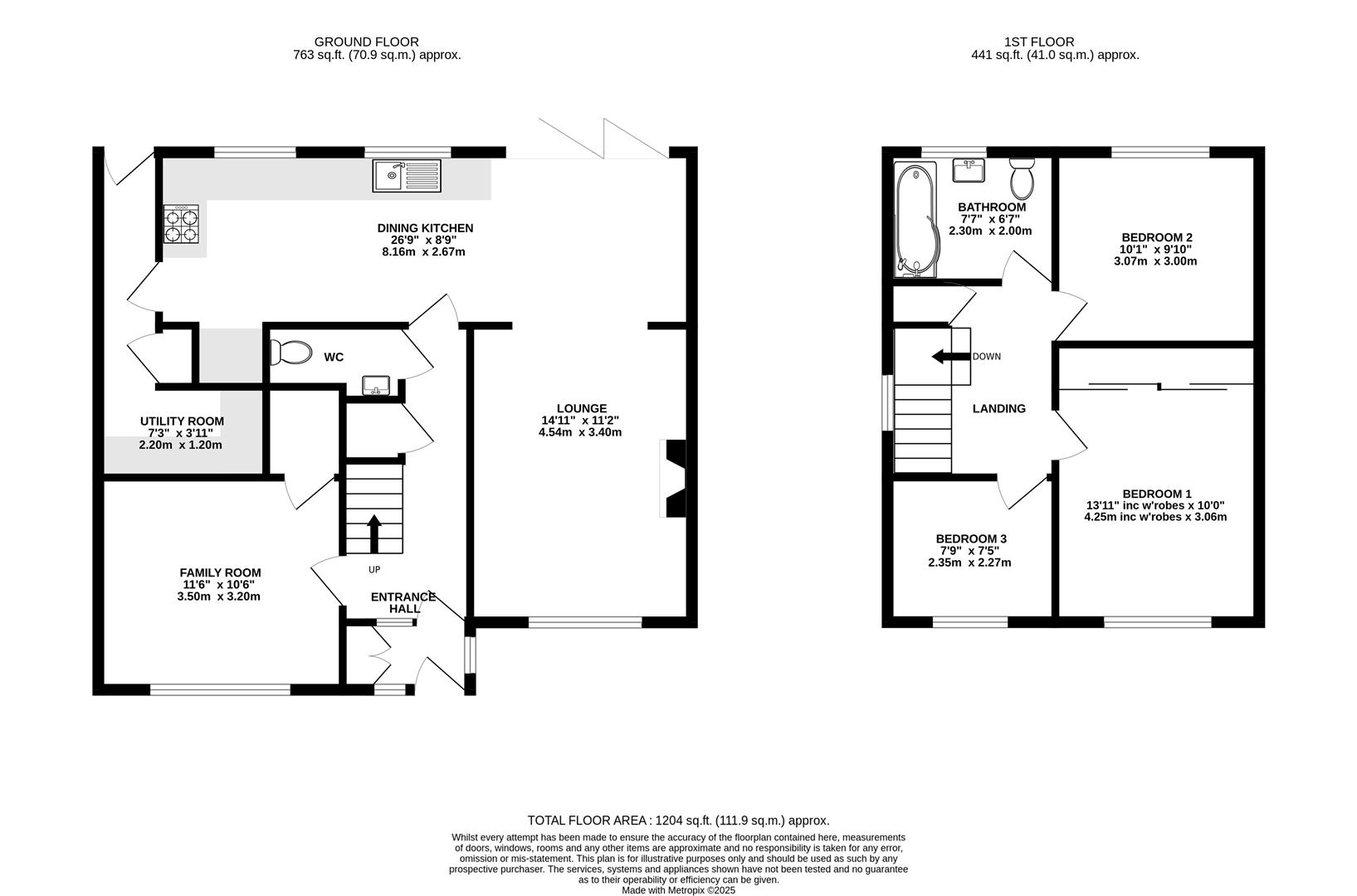
Arranged over two floors, the property is entered via a useful porch with built-in storage, leading into a bright entrance hallway with access to the first floor and a convenient downstairs cloakroom/WC and understairs storage.
On the ground floor, the accommodation includes a comfortable lounge featuring a log-burning stove, and a separate playroom with fitted storage, professionally converted from the original garage. To the rear lies a stunning open-plan kitchen/dining/family room, fitted with quality integrated appliances, and complimented by a separate utility room—keeping day-to-day living organised and clutter-free.
Upstairs, a turned staircase leads to three bedrooms: two spacious doubles and a well-proportioned single, all served by a sleek, modern family bathroom.
Externally, the property benefits from mature planting and hedgerows. The rear garden is fully enclosed and mainly laid to lawn, with a patio entertaining space and a versatile garden office, complete with power and heating—ideal for home working or creative pursuits.
Homes of this calibre and cul-de-sac location rarely remain on the market for long. We highly recommend early viewing to fully appreciate all this property has to offer. Read more
Why not speak to us about it? Our property experts can give you a hand with booking a viewing, making an offer or just talking about the details of the local area.
Find out the value of your property and learn how to unlock more with a free valuation from your local experts. Then get ready to sell.
Book a valuation
Knutsford Sales & Lettings, Wright Marshall,
1 Princess Street, Knutsford, Cheshire, WA16 6BY















Lorem ipsum dolor sit amet, consectetuer adipiscing elit. Donec odio. Quisque volutpat mattis eros.
Lorem ipsum dolor sit amet, consectetuer adipiscing elit. Donec odio. Quisque volutpat mattis eros.
Lorem ipsum dolor sit amet, consectetuer adipiscing elit. Donec odio. Quisque volutpat mattis eros.