
Nantwich
Nantwich Sales & Lettings, Wright Marshall,
56 High Street, Nantwich, Cheshire, CW5 5BB
LOT 2: 20.14 Acres or Thereabouts of Grassland to the South of Beech Meadow Farm Guide Price £225,000.
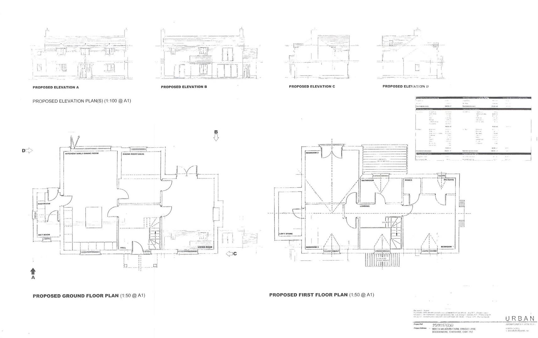
Positioned within the rural locality of Bridgemere with exemplary outlooks over the surrounding landscape. PLANNING PERMISSION GRANTED FOR A REPLACEMENT DWELLING (No: 2/0893/FUL). Forming a unique potential development opportunity for those requiring potential to create a semi rural small holding / mixed use property or potential equestrian opportunity. FOR SALE BY PRIVATE TREATY AS A WHOLE OR IN 3 LOTS – NO CHAIN:- LOT 1: Beech Meadow Farmhouse, Agricultural Buildings and 3.94 Acres or thereabouts of Grassland Guide Price £600,000. LOT 3: 1.82 Acres or Thereabouts of Grassland to the East of Beech Meadow Farm Guide Price £40,000. AS A WHOLE GUIDE PRICE £865,000
Positioned within the rural locality of Bridgemere with exemplary outlooks over the surrounding landscape.
Owned by the same family for generations the detached two storey dilapidated three bedroom farmhouse has PLANNING PERMISSION GRANTED FOR A REPLACEMENT DWELLING (Application No: 2/0893/FUL).
Forming a highly individual & unique potential development opportunity for those requiring potential to create a semi rural small holding / mixed use property or potential equestrian opportunity. Variations of potential use are vast which is becoming increasing rare to find within South Cheshire.
FOR SALE BY PRIVATE TREATY AS A WHOLE OR IN 3 LOTS – NO CHAIN:- LOT 1: Beech Meadow Farmhouse, Agricultural Buildings and 3.94 Acres or thereabouts of Grassland Guide Price £600,000. LOT 2: 20.14 Acres or Thereabouts of Grassland to the South of Beech Meadow Farm Guide Price £225,000. LOT 3: 1.82 Acres or Thereabouts of Grassland to the East of Beech Meadow Farm Guide Price £40,000. AS A WHOLE GUIDE PRICE £865,000
Opportunities of this nature are becoming few & far between affording extensive scope for owner occupiers or indeed possibly developers to maximise the potential in front of them as there is much external space to satisfy buyers combined with the magnificent views which are unrivalled in a picturesque setting.
In conjunction with Graham Watkins & Co (NOTE: General Dispersal Sale 7th March 2026 from 10.30am) Read more
Why not speak to us about it? Our property experts can give you a hand with booking a viewing, making an offer or just talking about the details of the local area.
Find out the value of your property and learn how to unlock more with a free valuation from your local experts. Then get ready to sell.
Book a valuation
Nantwich Sales & Lettings, Wright Marshall,
56 High Street, Nantwich, Cheshire, CW5 5BB












Lorem ipsum dolor sit amet, consectetuer adipiscing elit. Donec odio. Quisque volutpat mattis eros.
Lorem ipsum dolor sit amet, consectetuer adipiscing elit. Donec odio. Quisque volutpat mattis eros.
Lorem ipsum dolor sit amet, consectetuer adipiscing elit. Donec odio. Quisque volutpat mattis eros.