
Nantwich
Nantwich Sales & Lettings, Wright Marshall,
56 High Street, Nantwich, Cheshire, CW5 5BB
NO CHAIN
A delightful three-bedroom mid-terrace period townhouse which offers a perfect blend of modern living and a dash of classic character. With vacant possession, this property is ready for you to move in without delay & to create your gorgeous new home. With open-plan living area that is both spacious and inviting there are good sized bedrooms & compact bathroom to the first floor.
One of the standout features of this home is the parking space to the rear, a rare find in such a central location. Situated in a highly convenient area, the property is just a stone’s throw away from the popular Leopard Public House, making it an excellent choice for those who enjoy local amenities and a vibrant community atmosphere.
Situated on a popular residential street, this attractive period mid-terrace home offers a wonderful blend of traditional character and comfortable living. With its striking red brick façade, decorative detailing, and bay-fronted windows, the property delivers excellent curb appeal and a welcoming first impression.
A gated pathway leads through the front garden to an inviting entrance, setting the tone for the charm and character found throughout. Inside, the property offers well-proportioned accommodation with high ceilings, large windows, and plenty of natural light. The layout is ideally suited to modern living, providing comfortable reception space for both relaxing and entertaining. Upstairs, the home offers generous bedroom accommodation along with family facilities, making it an excellent choice for first-time buyers, professionals, or growing families. The property also offers scope for personalisation or enhancement, allowing the next owner to add their own style and value over time. Located within easy reach of local shops, amenities, well-regarded schools, and convenient transport links, this is a fantastic opportunity to acquire a character home in a desirable and well-connected area.
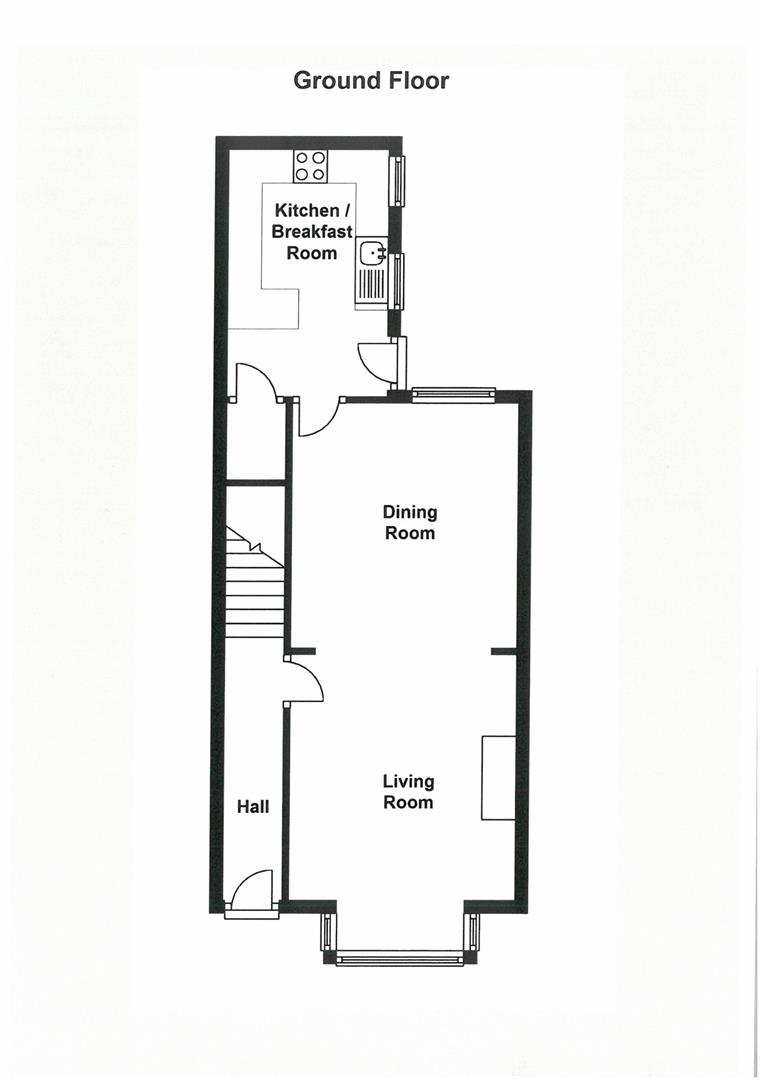
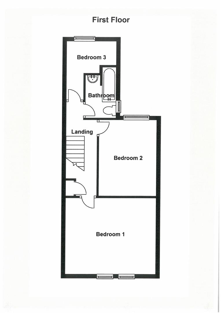
Briefly comprising; Hall, Living Room opening to Dining Room, Fitted Kitchen, under stairs Pantry. First Floor Landing, Bedroom One (double), Bedroom Two (double), Bedroom Three (single), Bathroom.
Attractive and surprisingly spacious rear garden with lawned area, patio, decking & pathway with gate leading to the rear parking with space for two vehicles.
UPVC double glazing and Gas Central Heating. NOTE: The original brick outhouses and WC have been removed and have been decked (new services connected), which provides the opportunity to create a workshop/laundry room/home office (subject to any necessary consents).
Situated in a highly convenient area, the property is just a stone's throw away from the popular Leopard Public House, making it an excellent choice for those who enjoy local amenities and a vibrant community atmosphere.
NO CHAIN Read more
Why not speak to us about it? Our property experts can give you a hand with booking a viewing, making an offer or just talking about the details of the local area.
Find out the value of your property and learn how to unlock more with a free valuation from your local experts. Then get ready to sell.
Book a valuation
Nantwich Sales & Lettings, Wright Marshall,
56 High Street, Nantwich, Cheshire, CW5 5BB























Lorem ipsum dolor sit amet, consectetuer adipiscing elit. Donec odio. Quisque volutpat mattis eros.
Lorem ipsum dolor sit amet, consectetuer adipiscing elit. Donec odio. Quisque volutpat mattis eros.
Lorem ipsum dolor sit amet, consectetuer adipiscing elit. Donec odio. Quisque volutpat mattis eros.