
Nantwich
Nantwich Sales & Lettings, Wright Marshall,
56 High Street, Nantwich, Cheshire, CW5 5BB
Standing in a highly regarded & convenient location in excellent school catchments and within walking distance of the town centre. Exacting stylish interiors within the stunning edge of development four bedroom, two bathroom freehold detached ‘David Wilson’ house enable versatile family friendly living. Standing in the best location at the head of a small cul de sac adjoining a beautiful protected conservation area. Outstanding mature professionally landscaped gardens to the front, rear & side feature impressive seating & entertaining areas which are the perfect places to enjoy the open view.
Single Garage & Tarmacadam tandem drive. Impressive far reaching view over the adjoining conservation area. UPVC D.G. & UPVC D.G.
Standing in a highly regarded & convenient location in excellent school catchments and within walking distance of the town centre, the well appointed & spacious detached house boasts extremely versatile accommodation (being particularly ideal for families) over two beautifully presented floors.
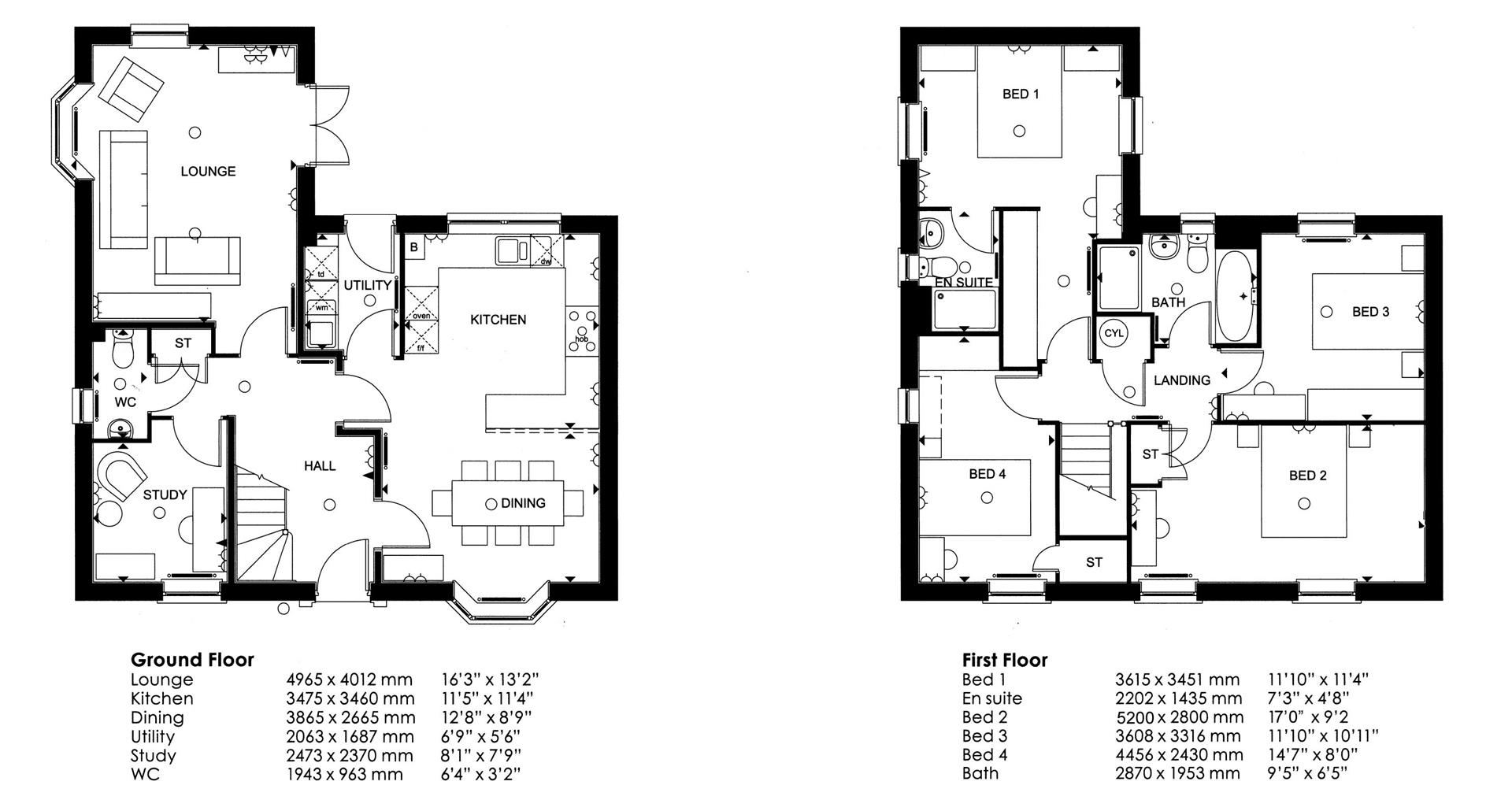
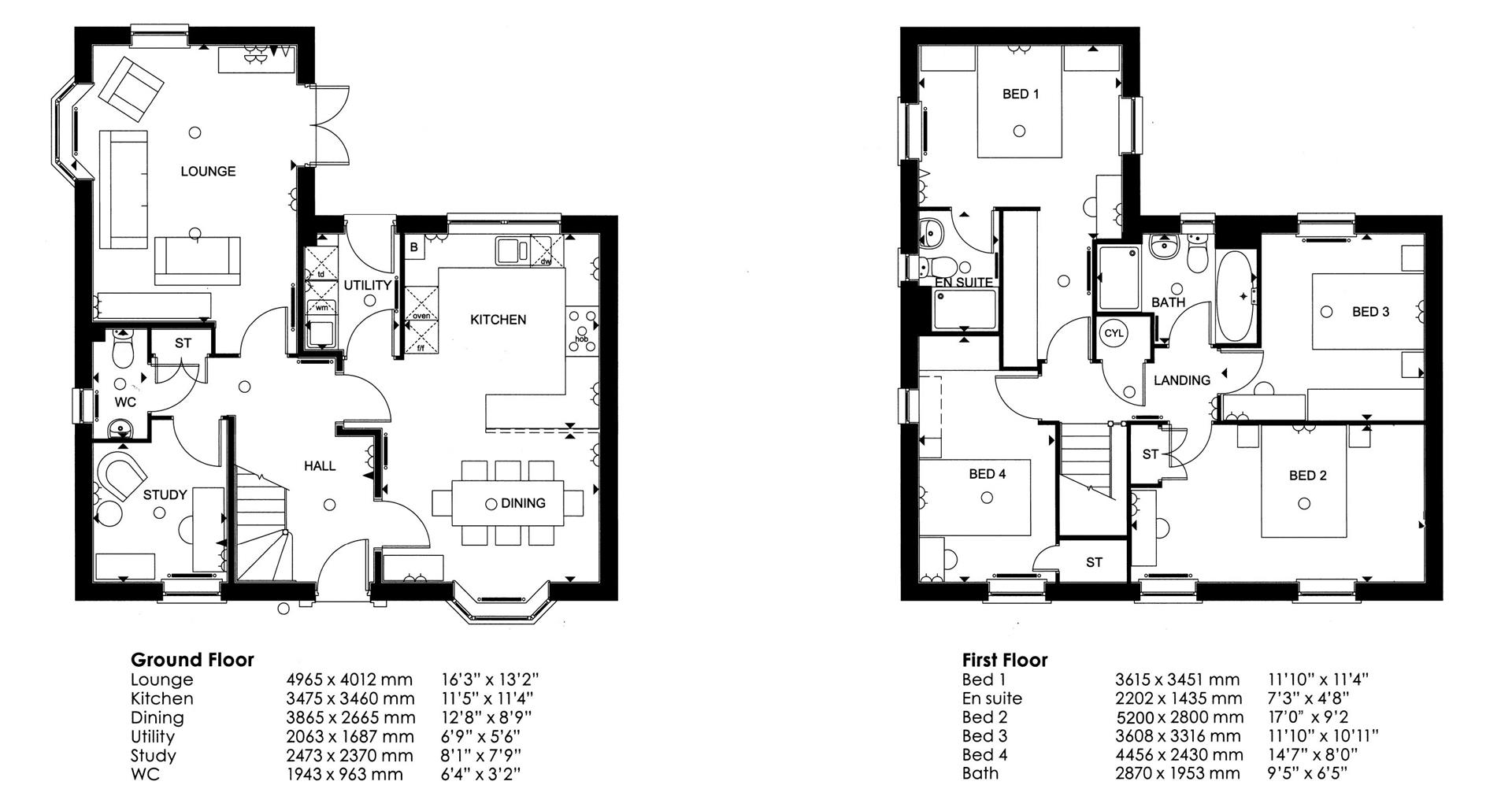
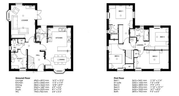
An outstanding FREEHOLD Detached double fronted Four Bedroom, Two Bathroom 'David Wilson' House built to the Avondale design situated in one of the quietest areas of the development right at the end of a small
quiet cul-de sac with no passing people or traffic and boasting a premium position adjoining a beautiful protected conservation area.
Briefly comprising; Spacious Entrance Hall with built in cloaks cupboard, WC, Kitchen Dining Family Room with quality integrated appliances, Living Room with superb open view over the adjoining conservation area. First Floor Landing, Master Bedroom One with Dressing Area & Ensuite Shower Room, Bedroom Two, Bedroom Three, Bedroom Four, Family Bathroom.
Boasting impeccable internal decoration throughout, outstanding professionally landscaped gardens to the front, rear & side which is the perfect place to sit & enjoy the open view.
Single Garage & Tarmacadam tandem drive.
Impressive far reaching view over the adjoining conservation area.
UPVC D.G. & UPVC D.G.
VIEWING IS HIGHLY RECOMMENDED TO FULLY APPRECIATE THE WEALTH OF ACCOMMODATION ON OFFER & GLORIOUS LOCATION Read more
Why not speak to us about it? Our property experts can give you a hand with booking a viewing, making an offer or just talking about the details of the local area.
Find out the value of your property and learn how to unlock more with a free valuation from your local experts. Then get ready to sell.
Book a valuation
Nantwich Sales & Lettings, Wright Marshall,
56 High Street, Nantwich, Cheshire, CW5 5BB








































Lorem ipsum dolor sit amet, consectetuer adipiscing elit. Donec odio. Quisque volutpat mattis eros.
Lorem ipsum dolor sit amet, consectetuer adipiscing elit. Donec odio. Quisque volutpat mattis eros.
Lorem ipsum dolor sit amet, consectetuer adipiscing elit. Donec odio. Quisque volutpat mattis eros.