
Nantwich
Nantwich Sales & Lettings, Wright Marshall,
56 High Street, Nantwich, Cheshire, CW5 5BB
Muir Housing Group are delighted to present The Crescent, Ketton, Rutland. This development includes 3 bedroom houses developed by Balfour Beatty Homes. ONLY 2 PLOTS REMAINING 36 & 37
Each new build home had been carefully designed to offer spacious practical fitted kitchens, comfortable living spaces well planned bedrooms and attractive exteriors. Every aspect of your new Muir home is carefully finished to the highest standard. The scheme includes vehicular and pedestrian accesses, public open space and landscaping.
Ketton is a picturesque village located just three miles from the historical market town of Stamford. With good transport links, amenities and schools nearby these properties would make a fantastic home for families and those looking to downsize.
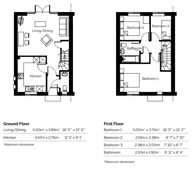
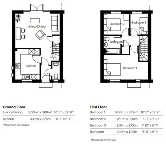
Full Market Value (3 bedroom End Terrace): £320,000
Full Market Value (3 bedroom Mid Terrace): £310,000
25% Share Value: (3 bedroom End Terrace): £80,000
25% Share Value (3 bedroom Mid Terrace: £77,500
Rent on unowned share (3 bedroom End Terrace): £550.00
Rent on unowned share (3 bedroom Mid Terrace): £532.81
Service Charge: £36.54 PCM
Fully fitted kitchen with 4 ring electric hob, single cooker and extractor fan
Vinyl flooring to kitchen and bathroom (and cloakroom in the houses)
Double glazing and high performance insulation throughout
Gas central heating with high efficiency boiler
Fully turfed rear garden with shed and outside tap
Parking for two cars
10 year new homes warranty
250 year lease term
Eligibility
Have a combined household income under £80,000 per annum
Not already own a property, or part of a property, at the time of completing on your purchase
Be unable to purchase a suitable home to meet your housing needs on the open market.
Information on Shared Ownership;
If you can't afford the mortgage on 100% of a home, Shared Ownership offers you the chance to buy a share of your home (between 40% and 75%) and pay rent on the remaining share. You could buy bigger shares when you can afford to do so which is referred to as 'staircasing' and the more shared you own, the less rent you pay. Muir Housing Group offer 'staircasing' to 100% ownership.
Management and estate charges apply. Read more
Why not speak to us about it? Our property experts can give you a hand with booking a viewing, making an offer or just talking about the details of the local area.
Find out the value of your property and learn how to unlock more with a free valuation from your local experts. Then get ready to sell.
Book a valuation
Knutsford Sales & Lettings, Wright Marshall,
1 Princess Street, Knutsford, Cheshire, WA16 6BY

















Lorem ipsum dolor sit amet, consectetuer adipiscing elit. Donec odio. Quisque volutpat mattis eros.
Lorem ipsum dolor sit amet, consectetuer adipiscing elit. Donec odio. Quisque volutpat mattis eros.
Lorem ipsum dolor sit amet, consectetuer adipiscing elit. Donec odio. Quisque volutpat mattis eros.